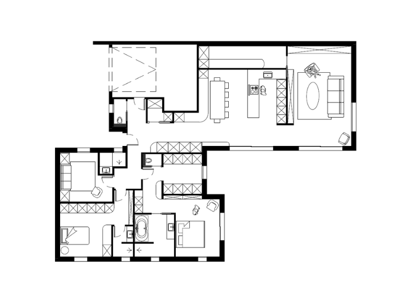
Prestation : Résidentiel - Aménagement d'une maison neuve de 150 m2.
Lieu : Lucenay
Back to Top