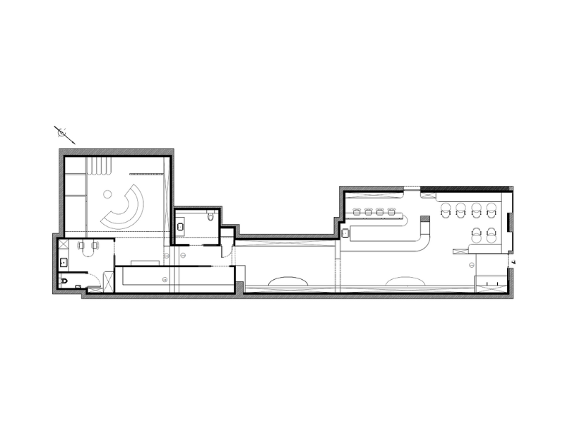
Prestations : ERP - Aménagement d'un café librairie de 175 m2
Localisation : Lyon
Back to Top